Участок

ЛО, Лужский, Калгановка дер.   Посмотреть на карте

Номер объекта: 340980

Время работы Call Центра:

ПН-ПТ с 9-30 до 22-00

СБ-ВС с 10-00 до 22-00

Нажимая на кнопку «Позвонить мне», Вы даете согласие на обработку своих персональных данных.

Описание

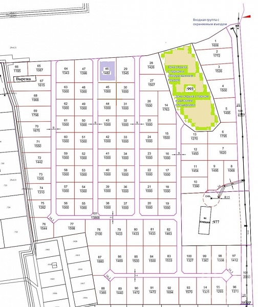
Предлагается к продаже земельный участок в новом строящемся дачном поселке в деревне Калгановка в нескольких км. от г.Луга. К дачному поселку уже подведен газ и электричество (15 Квт).
На данный момент проводится планировка участков и прокладка дорог. Участок полностью разработан и подготовлен к строительству. После отсыпки ширина дорог будет составлять 9 метров. Ширина заездов 16 м. В поселке запланирована зона отдыха с парковой зоной, оборудованном прудом и детскими площадками., входная группа с охраняемым въездом.
Рядом располагается загородный ресторан, озеро, магазины.
Работы по введению в эксплуатацию дачного поселка ведутся очень активно. Звоните, расскажу подробно о ходе работ.
Приобретая участок на этапе строительства Вы имеете возможность выбрать его месторасположение, а также возможность приобретения нескольких соседних участков по выгодной цене.
Индивидуальные условия подлежат обсуждению.

Расположение

Адрес
Калгановка дер.
Район
Лужский
Город
Калгановка
Регион
Ленинградская область

Площади, м2

Площадь участка
15 сот.

Параметры

Ипотека
Нет
Подъездные пути
Асфальт
Участок
Собственность

Узнайте больше об объекте

Получите консультацию специалиста

Нажимая на кнопку «Отправить заявку», Вы даете согласие на обработку своих персональных данных.

Объект на карте

Похожие объекты

Этот сайт использует файлы cookie для улучшения пользовательского опыта. Cookie - это небольшие текстовые файлы, которые сохраняются на вашем устройстве и помогают нам запоминать ваши предпочтения, анализировать посещаемость сайта и предоставлять более персонализированный контент. Использование файлов cookie позволяет нам сделать сайт удобнее для вас. Политика конфиденциальности
Принять Отказаться