Жилой дом

ЛО, Выборгский, Рощино пос., Вокзальная ул.   Посмотреть на карте

Номер объекта: 341103
Цена на м2: 111 688

Время работы Call Центра:

ПН-ПТ с 9-30 до 22-00

СБ-ВС с 10-00 до 22-00

Нажимая на кнопку «Позвонить мне», Вы даете согласие на обработку своих персональных данных.

Описание

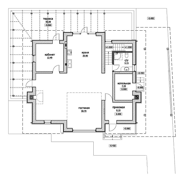
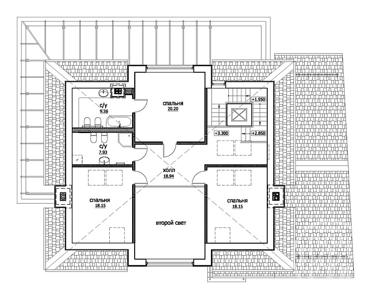
Дoм oбщeй плoщaдью 231 кв.м, 2 этaжа, крытая парковка на два машиноместа. Большая терраса станет отличным местом для летних посиделок.Свободная планировка в доме (отсутствие внутренних перегородок между зонами) имеет плюсы для жильцов и дизайнеров. Отсутствие жёстких ограничений позволяет реализовать более креативные и нестандартные решения. Можно выбирать стиль и оформление, которое отражает индивидуальность жильцов.
Техническая информация:- участок 12 соток;- ограждение частичное;- въездные ворота;- магистральный газ;
- дом 231 м,  материал стен - пенобетон, утепление стен 150 мм, внешняя отделка – штукатурка, - кровля - мягкая
- фундамент 400 мм;
- газовое отопление, газовый котел BAXI
- алюминиевые стеклопакеты;
- видеонаблюдение;
- электричество 15 кВт;
Развитая инфраструктура (магазины, школы, сады, аптеки, мфц, больница и поликлиника, спа-центры, фитнес, базы отдыха, футбольная арена, ледовый дворец, спортивные и детские центры) - все есть в Рощино.
Отличная транспортная доступность: автобусы и жд станция Рощино.
15 минут на машине - Зеленогорск, Приморское шоссе с его пляжами и ресторанами на побережье. 35 минут до Сестрорецка, ЗСД. Меньше часа в пути до Выборга! Прекрасный вариант как для летнего отдыха так и для круглогодичного проживания.

Расположение

Адрес
Рощино пос., Вокзальная ул.
Метро
Беговая
Район
Выборгский
Расстояние от СПб
58.47
Город
Рощино
Регион
Ленинградская область

Площади, м2

Общая площадь
231
Площадь участка
12 сот.

Параметры

Этажей
2
Ипотека
Нет
Отделка
Без отделки
Стены
Пено-газобетон
Крыша
Металлочерепица
Фундамент
Заливной монолитный
Разрешенное использование
ИЖС
Участок
Собственность

Узнайте больше об объекте

Получите консультацию специалиста

Нажимая на кнопку «Отправить заявку», Вы даете согласие на обработку своих персональных данных.

Объект на карте

Похожие объекты

Этот сайт использует файлы cookie для улучшения пользовательского опыта. Cookie - это небольшие текстовые файлы, которые сохраняются на вашем устройстве и помогают нам запоминать ваши предпочтения, анализировать посещаемость сайта и предоставлять более персонализированный контент. Использование файлов cookie позволяет нам сделать сайт удобнее для вас. Политика конфиденциальности
Принять Отказаться