Жилой дом

Санкт-Петербург, Курортный, Сестрорецк г., Парковая ул.   Посмотреть на карте

Номер объекта: 344970
Цена на м2: 127 964

Время работы Call Центра:

ПН-ПТ с 9-30 до 22-00

СБ-ВС с 10-00 до 22-00

Нажимая на кнопку «Позвонить мне», Вы даете согласие на обработку своих персональных данных.

Описание

СПб, Курортный район, г. Сестрорецк, ул. Парковая д.9

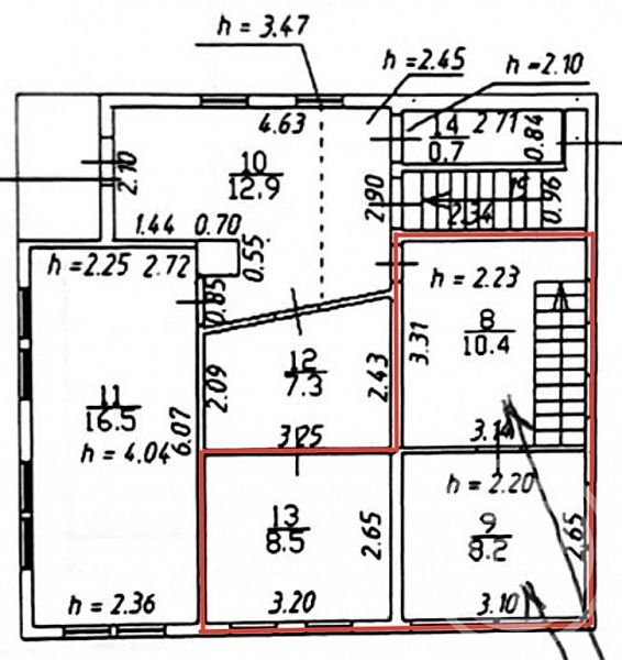
Предлагается к продаже выделенная 1/4 часть жилого зимнего дома 46 м2 (общая площадь дома 137,5м2) с персональным земельным участком 3,5 сотки расположенных в шаговой доступности от пляжей Финского Залива. По дому и земельному участку определен порядок пользования с сособственниками. Помещение имеет свой отдельный вход.
Помещение состоит из 3-х комнат (8,5+8,2+9,1) м2 и кухни 10 м2, расположенных на 1-м и 2-м этажах жилого дома.
Свой персональный земельный участок мерою 3,5 сотки.
Удобства во дворе. Вода колодец.
Хорошая транспортная доступность. К остановке городского транспорта 7 минут пешком,  Ж/д станции Сестрорецк 20 минут пешком.
Ждем Вас, лето обещает быть жарким!

Расположение

Адрес
Сестрорецк г., Парковая ул.
Метро
Беговая
Район
Курортный
Расстояние от СПб
7.43
Город
Сестрорецк
Регион
Санкт-Петербург

Площади, м2

Общая площадь
137.5
Площадь участка
1422 сот.

Параметры

Комнат
3
Санузел
На улице
Этажей
2
Ипотека
Нет
Отделка
Обои
Отопление
Печь
Электрификация
Есть
Канализация
Нет
Водоснабжение
Колодец+насос
Стены
Бревна
Крыша
Металл
Фундамент
Цокольный
Разрешенное использование
ИЖС
Участок
Собственность

Узнайте больше об объекте

Получите консультацию специалиста

Нажимая на кнопку «Отправить заявку», Вы даете согласие на обработку своих персональных данных.

Объект на карте

Похожие объекты

Этот сайт использует файлы cookie для улучшения пользовательского опыта. Cookie - это небольшие текстовые файлы, которые сохраняются на вашем устройстве и помогают нам запоминать ваши предпочтения, анализировать посещаемость сайта и предоставлять более персонализированный контент. Использование файлов cookie позволяет нам сделать сайт удобнее для вас. Политика конфиденциальности
Принять Отказаться