Комната в 3-комн. квартире

Санкт-Петербург, Петродворцовый, Петергоф г., Чебышевская ул.   Посмотреть на карте

Номер объекта: 340002
Цена на м2: 24 854

Время работы Call Центра:

ПН-ПТ с 9-30 до 22-00

СБ-ВС с 10-00 до 22-00

Нажимая на кнопку «Позвонить мне», Вы даете согласие на обработку своих персональных данных.

Описание

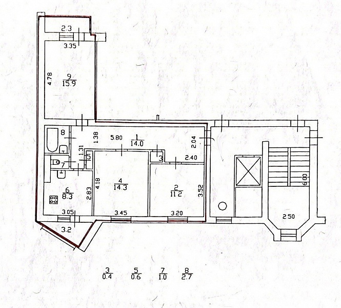
В продаже комната 11.2 кв.м. в уютной, светлой 3х. ком. квартире с 2 балконами  на 4 этаже,
на ул.Чебышевская 14 корп.2., Санкт-Петербург,  г.Петергоф.

Кваpтира нaxoдится на 4 этаже 7этажного кирпичного дома 1988 г. постройки. В доме есть лифт, мусоропровод, газовая плита.  Перекрытия выполнены из железобетонных плит. Центральное отопление.

Общая площадь квартиры - 68,4 кв.м, жилая - 41,4 кв.м., площадь кухни - 8,3кв.м. Высота потолков - 2,5 м.  Состояние квартиры хорошее, выполнен косметический ремонт, окна выходят на улицу с хорошим видом.
В квартире проживает  еще 2 соседа, все тихие, чистоплотные, доброжелательные.

Удобное расположение дома позволит быстро добраться до центра Петербурга на маршрутке, автобусе или электричке. Развитая инфраструктура района обеспечит всё необходимое для комфортной жизни.
1 собственник, быстрый выход на сделку, сделка нотариальная, документы в порядке.
Звоните, всегда отвечу на все вопросы.

Расположение

Адрес
Петергоф г., Чебышевская ул., 14
Метро
Проспект Ветеранов
Район
Петродворцовый
Город
Петергоф
Регион
Санкт-Петербург

Площади, м2

Жилая площадь
41.4
Общая площадь
68.4
Площадь ванной
2.7
Площадь кухни
8.3
Площадь прихожей
14
Площадь санузла
1

Параметры

Входная дверь
металлическая
Горячее водоснабжение
Центральное
Дата постройки
1988
Комнат
3
Лифт
Есть
Плита
Газовая
Сан. узел
Раздельный
Состояние
Хорошее
Вход
со двора
Дом
Кирпичный
Этаж
4
Этажность
7
Ипотека
Да

Узнайте больше об объекте

Получите консультацию специалиста

Нажимая на кнопку «Отправить заявку», Вы даете согласие на обработку своих персональных данных.

Объект на карте

Похожие объекты

Затрудняетесь с выбором?

Не тратьте время на поиск и анализ множества предложений недвижимости
Мы сделаем это за вас профессионально, быстро, предложив оптимальные варианты по выгодной цене!

Затрудняетесь с выбором?

Не тратьте время на поиск и анализ множества предложений недвижимости
Мы сделаем это за вас профессионально, быстро, предложив оптимальные варианты по выгодной цене!

Этот сайт использует файлы cookie для улучшения пользовательского опыта. Cookie - это небольшие текстовые файлы, которые сохраняются на вашем устройстве и помогают нам запоминать ваши предпочтения, анализировать посещаемость сайта и предоставлять более персонализированный контент. Использование файлов cookie позволяет нам сделать сайт удобнее для вас. Политика конфиденциальности
Принять Отказаться