3-х комнатная квартира

Санкт-Петербург, Приморский, Планерная ул.   Посмотреть на карте

Номер объекта: 342772
Цена на м2: 275 754

Время работы Call Центра:

ПН-ПТ с 9-30 до 22-00

СБ-ВС с 10-00 до 22-00

Нажимая на кнопку «Позвонить мне», Вы даете согласие на обработку своих персональных данных.

Описание

Жилой комплекс «Тайм Сквер» состоит из 13 корпусов, в каждом из которых по 13 этажей. Слово «Тайм» (в переводе с английского языка time — время) в названии жилого комплекса обыгрывается ключевым архитектурным решением. Каждый из корпусов, расположенных по периметру участка, символизирует отдельный час на циферблате, а центральный дом обозначает место пересечения стрелок. С высоты птичьего полета жилой комплекс выглядит как огромные часы!

Отделка фасадов жилого комплекса «Тайм Сквер» выполнена из клинкерной плитки и штукатурки. Сочетание благородного графитового и стильного серого цветов, а также асимметричное расположение окон придают архитектурному облику оригинальность.

Именно здесь на 11 этaже 13-ти этажного дoмa бизнес класса, находится наша шикарная квартира, общей площадью 92,8 квадратных метров. Предчистовая отделка и грамотная планировка, позволят реализовать все самые смелые дизайнерские решения.

Шикарная инфраструктура комплекса включает в себя:

- Детские сады, школы, знаменитый IТ-лицей на базе ИТМО !
- Благоустроенные зоны отдыха и зеленые дворы !
- Современные IР-домофоны и круглосуточное видеонаблюдение !
- Подземный отапливаемый паркинг с доступом на лифте !
- Круглосуточная охрана и многое другое !

Можно очень долго описывать достоинства и преимущества нашего объекта, но как говориться `лучше один раз увидеть, чем сто раз услышать` !

До встречи !

Расположение

Адрес
Планерная ул., 99
Метро
Беговая
Район
Приморский
Регион
Санкт-Петербург

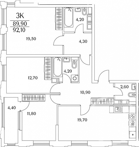
Площади, м2

Жилая площадь
44
Общая площадь
92.8
Площадь ванной
4.2
Площадь кухни
19.7
Площадь прихожей
10.9
Площадь санузла
2.6

Параметры

Входная дверь
металлическая
Дата постройки
2025
Дата ремонта
2025
Комнат
3
Лифт
Есть
Плита
Электрическая
Сан. узел
Совмещенный
Состояние
Отличное
Вход
несколько
Дом
Монолитный
Этаж
11
Этажность
13
Ипотека
Нет

Узнайте больше об объекте

Получите консультацию специалиста

Нажимая на кнопку «Отправить заявку», Вы даете согласие на обработку своих персональных данных.

Объект на карте

Похожие объекты

Затрудняетесь с выбором?

Не тратьте время на поиск и анализ множества предложений недвижимости
Мы сделаем это за вас профессионально, быстро, предложив оптимальные варианты по выгодной цене!

Затрудняетесь с выбором?

Не тратьте время на поиск и анализ множества предложений недвижимости
Мы сделаем это за вас профессионально, быстро, предложив оптимальные варианты по выгодной цене!

Затрудняетесь с выбором?

Не тратьте время на поиск и анализ множества предложений недвижимости
Мы сделаем это за вас профессионально, быстро, предложив оптимальные варианты по выгодной цене!

Этот сайт использует файлы cookie для улучшения пользовательского опыта. Cookie - это небольшие текстовые файлы, которые сохраняются на вашем устройстве и помогают нам запоминать ваши предпочтения, анализировать посещаемость сайта и предоставлять более персонализированный контент. Использование файлов cookie позволяет нам сделать сайт удобнее для вас. Политика конфиденциальности
Принять Отказаться