3-х комнатная квартира

Санкт-Петербург, Петродворцовый, Ломоносов г., Сафронова ул.   Посмотреть на карте

Номер объекта: 344851
Цена на м2: 112 069

Время работы Call Центра:

ПН-ПТ с 9-30 до 22-00

СБ-ВС с 10-00 до 22-00

Нажимая на кнопку «Позвонить мне», Вы даете согласие на обработку своих персональных данных.

Описание

В прямой продаже продается квартира под капитальный ремонт с очень практичной планировкой .
Отличное местоположение рядом с центром г.Ломоносова, микрорайон граничит с живописным главным сквером города, в 15 мин ходьбы от ж\д ст Ораниенбаум, отличное транспортное сообщение с Санкт-Петербургом: наземная ветка метро - электрички с тактовым расписанием в часы пик, автобусы, маршрутные такси.
Знаменитый пригород Санкт-Петербурга, с прекрасными пейзажным и регулярным парками и дворцами ГМЗ Ораниенбаум, тихие улочки с дореволюционными дачами, патриархальный уклад жизни жителей с городскими праздниками, фейрверками в сквере, живописными видами на Финский залив, прекрасными выставками, спектаклями, концертами Дома культуры, школы искусств им. И Ф Стравинского.
Дом - кирпичный, расположен в тихих дворах, достойная по площади кухня, балкон, высокие потолки, двухсторонняя с окнами на зеленую зону и детскую площадку.
В квартире установлены стеклопакеты, произведен ремонт отопительной системы, установлены новые батареи.
2 взрослых собственника, наследство, нет зарегистрированных лиц, показы по договоренности, в любое удобное время. Вышлем видео по запросу.

Расположение

Адрес
Ломоносов г., Сафронова ул., 2
Метро
Автово
Район
Петродворцовый
Город
Ломоносов
Регион
Санкт-Петербург

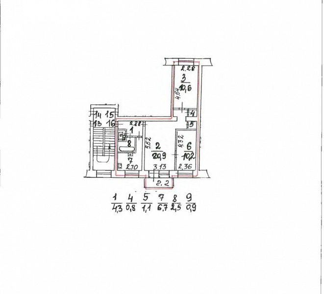
Площади, м2

Жилая площадь
41.7
Общая площадь
58
Площадь ванной
2.5
Площадь кухни
6.7
Площадь прихожей
4.3
Площадь санузла
0.9

Параметры

Балкон
балкон
Входная дверь
двойная
Горячее водоснабжение
Газовая колонка
Дата постройки
1959
Комнат
3
Лифт
Нет
Плита
Газовая
Сан. узел
Раздельный
Состояние
Требуется ремонт
Вход
со двора
Дом
Кирпичный
Этаж
4
Этажность
5
Ипотека
Да

Узнайте больше об объекте

Получите консультацию специалиста

Нажимая на кнопку «Отправить заявку», Вы даете согласие на обработку своих персональных данных.

Объект на карте

Похожие объекты

Затрудняетесь с выбором?

Не тратьте время на поиск и анализ множества предложений недвижимости
Мы сделаем это за вас профессионально, быстро, предложив оптимальные варианты по выгодной цене!

Затрудняетесь с выбором?

Не тратьте время на поиск и анализ множества предложений недвижимости
Мы сделаем это за вас профессионально, быстро, предложив оптимальные варианты по выгодной цене!

Этот сайт использует файлы cookie для улучшения пользовательского опыта. Cookie - это небольшие текстовые файлы, которые сохраняются на вашем устройстве и помогают нам запоминать ваши предпочтения, анализировать посещаемость сайта и предоставлять более персонализированный контент. Использование файлов cookie позволяет нам сделать сайт удобнее для вас. Политика конфиденциальности
Принять Отказаться