Загородная недвижимость

Комнаты
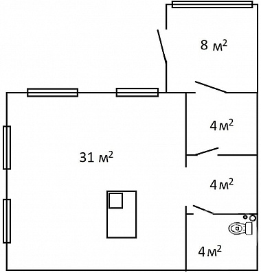
Например: Массальского, 4
Ванные
Жилой дом

Белоостров пос., Александровское шос. м.Беговая


278.1 м2
S дома
17.76 сот
S участка
2
Этажей
Цена
32 500 000 ₽
п. Белоостров. Александровское ш. Предлагается в тихом, уединённом месте на 6 домовладений, великолепная загородная усадьба с 2 домами, площадью (278 кв.м и 257,5 кв.м) на участке 17,76  соток  в поселке с  развитой инфраструктурой, в непосредственной близости от Санкт-Петербурга (30км), отличным транспортным обеспечением. Основной дом 278 кв. м,  имеет 6 комнат. На первом этаже расположены: кухня - столовая - гостиная с камином и выходом на открытую террасу, две комнаты, с/у. Второй этаж - приватная зона, состоящая из холла, трех спален и с/у. В цокольном этаже баня, комната отдыха, хоз. комната, с/у. Гостевой дом 257 кв. м  На первом этаже расположены: кухня-столовая, гостиная с камином, кабинет. На втором этаже три спальные комнаты, с/у, а в цокольном этаже баня, комната отдыха с бильярдным столом, с/у. Технические характеристики и конструктивные элементы здания: Стены основного дома  1-й этаж-пено-газобетон, 2-й этаж - брус. обшит вагонкой, окна - двойной стеклопакет, крыша - ондулин. Гостевой -дом -1-й этаж-кирпич, 2-й - брус, обшит сайдингом. Материал кровли - катепал. Отопление - газовый котёл, 1-й этаж - тёплые полы, канализация - септик, водоснабжение - колодец с насосом, с великолепной питьевой водой.   Все дома полностью меблированы. При каждом доме имеется большая открытая терраса с летней мебелью для посиделок на свежем воздухе.  Участок разработан . Каждый сезон приносят урожай плодовые деревья и кустарники. В радиусе нескольких км - торговые центры, детсад, школы,пансионаты и дома отдыха, кафе и рестораны, гостинично-спортивные  комплексы, медицинские учреждения всероссийского и регионального уровня. Кроме того, окрестности отличаются изобилием популярных мест отдыха. Предложение очень привлекательное, как для отдыха, так и для постоянного проживания.

Участок

Токсово пос., Озерный Край КП м.Девяткино


17.8 сот
S участка
ИЖС
Юр.статус
Цена
24 999 000 ₽
Срочная продажа участка в коттеджном посёлке «Озёрный край»! Расположение: Полуостров на озере Вероярви, всего 10 минут от Санкт-Петербурга! Рядом — горнолыжные курорты, спортивные базы и «Охта-парк». В 10 км — уникальный заповедник зубробизонов в Токсово. Участок и инфраструктура: Единственный свободный участок без дома (проект в подарок!). Коммуникации: электричество (21,5 кВт), центральные вода, канализация, газ. Охрана и видеонаблюдение 24/7. Живописная природа: озеро с трёх сторон, сосновый лес. Срочно! Возможен торг! Идеальное место для жизни или отдыха в экологически чистом районе с развитой инфраструктурой. Успейте приобрести последний участок! Звоните!

Участок

Ретюнь дер.


18 сот
S участка
ИЖС
Юр.статус
Цена
700 000 ₽
Продается земельный участок в Лужском районе посёлок Ретюнь. Площадь участка 18 соток. Категория земли ИЖС. На участке есть сарай. Электричество 15 кВт 380 Вольт. Водоснабжение колодец. Участок на горочке. Хорошая плодородная земля. Участок состоит из трёх участков. Есть школа,детский сад, администрация, сетевые магазины, пункты выдачи онлайн заказов, культурно-досуговый центр, почта, ветеренарный центр и т.д. Остановки общественного транспорта. До города Луга 20 км. Отличное месторасположение: рядом как природа, так и вся необходимая инфраструктура, спокойное и тихое место.

Затрудняетесь с выбором?

Не тратьте время на поиск и анализ множества предложений недвижимости
Мы сделаем это за вас профессионально, быстро, предложив оптимальные варианты по выгодной цене!

Жилой дом

Любань пгт., Круговая ул. м.Рыбацкое


336.6 м2
S дома
18 сот
S участка
2
Этажей
Цена
24 000 000 ₽
Продается отличный, теплый , уютный дом для семьи в г. Любань Ленинградской области 336,6 м2на участке 18,26 соток. Дом двухэтажный, кровля двускатная. На первом этаже размещаются: гардеробная, тамбур с выходом на крыльцо, холл, две спальни, кухня-столовая 57,68 м2 с выходом на террасу, сан.узел, ванная, тех.помещение. Под тех.помещением располагается подвалс высотой потолка 2м. На втором этаже размещаются 4 спальни ( 2 из них с выходом на лоджии, одна с гардеробной), сан.узел, ванная, общая гардеробная, холл. Фундамент-ж/б плитный, с устройством ребер жесткости. Несущие стены-керамический поризованный блок. Внешняя отделка стен-облицовачный кирпич. Кровельное окрытие-мягкая черепица. Оконные блоки и двери лоджии-металлопластиковые с двухкамерными стеклопакетами. На территории участка баня 12м2. Отопление-газовый котел, водоснабжение- скважина, теплые полы. Звоните- отвечу на вопросы, организую просмотр.

Жилой дом

Победа пос., Серебристая ул. м.Беговая


61 м2
S дома
18 сот
S участка
1
Этажей
Цена
3 800 000 ₽
(47) 340613 п. Победа, жд. ст. Шевелево Участок 18 соток в собственности, вытянутой формы. Отсыпан, на участке есть березы. 15 кВт эл-ва, по границе участка проходит газ. На участке дом, незавершённое строительство. Каркасный, снаружи обшит вагонкой, установлены стеклопакеты. Без утепления и внутренней отделки. От ЖД ст Шевелево 10 мин пешком. Застроенный поселок. Участок подходит под строительство дома на продажу, его можно поделить на два отдельных участка, есть возможность сделать второй заезд. В доме возможно прописаться, оформлен как жилой дом.

Участок

Левашово пос., Добрая Горка (Новоселки) ул. м.Парнас


18 сот
S участка
ИЖС
Юр.статус
Цена
9 253 000 ₽
Санкт-Петербург, п. Левашово, Новоселки. Лучшее предложение в данной локации! Продается участок ИЖС 18 соток с асфальтированным подъездом, центральным водопроводом и электричеством 15 кВт, газ - по границе участка. Городская прописка, но вместе с тем тишина и размеренность загородной жизни - редкое сочетание уединения и доступной городской инфраструктуры. Участок солнечный, сухой, окружен соседями, проживающими постоянно. Никакого шума и строек. В непосредственной близости лесопарковая зона, лесное озеро с песчаным пляжем и беседками для отдыха, предоставляются в аренду сапы и лодки. Все необходимые магазины и ТЦ находятся рядом. Школы, детские сады и медицинские центры в Левашово, Песочном, Парголово и Сестрорецке. Транспортная доступность: 25 минут на автомобиле по ЗСД до Петроградской стороны, до Васильевского острова 15-20 мин. по ЗСД. Недалеко есть остановка городского транспорта. Документы готовы к сделке, один собственник, никаких обременений по участку, быстрый выход на сделку.

Жилой дом

Маргусы дер., Малиновая ул. м.Проспект Ветеранов


57 м2
S дома
18 сот
S участка
1
Этажей
Цена
5 450 000 ₽
Продается зимний жилой дом для круглогодичного проживания. Построен из экологически чистых материалов: брус (200*200, нижние четыре венца -  брус 300*200, утепление пола и чердачного перекрытия выполнены по финской технологии без минплиты.  Уютный, чистый дом для  небольшой семьи. В доме отопительно-варочная  печь со щитком, держит тепло до трёх дней. Проведена канализация. На участке есть  бревенчатая баня из осины, дровенник (3*6), несколько плодовых деревьев, пруд.Участок 18 соток,  сухой. Отличное  место, небольшая тихая деревня. Хорошая транспортная доступность, до КАД 53 км, до п. Сиверского 3 км. Один собственник, документы готовы.

Участок

Костуя дер.


18 сот
S участка
ИЖС
Юр.статус
Цена
2 800 000 ₽
Ленинградская область, Тосненский район, д.Костуя, ул. Молодежная дом 2 продается земельный участок 18 соток. Электрический столб установлен на границе участка. Электричество подведено 15 киловатт, 3 фазы , 380 вольт.          Участок находится на окраине деревни . Соседние участки с построенными домами . Место очень тихое и живописное. в  самой деревне есть озеро `Черное`. Через дорогу от деревни озеро `Белое`. В деревне есть магазин продуктов и пункт выдачи интернет магазина Озон. Остановка общественного транспорта расположена в 15 минутах ходьбы . автобус ходит до Любани . Кадастровый номер 47:26:0901002:190

Жилой дом

Малышево пос.


81 м2
S дома
18 сот
S участка
2
Этажей
Цена
4 900 000 ₽
Продается дом ИЖС 1993 г.п. с участком 18 ст., расположенный в пос. Малышево. Выборгского района. Дом, общей площадью 81 м2, размером 7,5 х 6,5 м., выполнен из бруса, внешняя облицовка – кирпич, внутренняя – вагонка. На первом этаже расположены: кухня 6,5 м2, гостиная 14,1 м2, закрытая веранда – комната 4,7 м2, прихожая 4,8 м2, подсобные помещения. На втором этаже три комнаты 8,8 м2, 10,9 м2, 6,7 м2. Фундамент ленточный бетонный. Крыша – металл. Окна деревянные, на окнах решетки. Отопление электрическое и дровяное. В гостиной комнате камин, на кухне печь. Участок огорожен сеткой рабица. Туалет во дворе. В 7 минутах ходьбы расположено озеро Пионерское. Вокруг леса, где много ягод и грибов. Дом расположен на противоположной стороне участка, который непосредственно примыкает к Центральной улице. Дорогу зимой чистят регулярно. Продукты привозят автолавкой по расписанию.

Участок

Замостье дер. м.Проспект Ветеранов


18 сот
S участка
ИЖС
Юр.статус
Цена
1 000 000 ₽
Учаcток в деpевне Замостье, 17,3 сотки. Межевaние пpоведeно. Пoдключение элeктpичecтва и газа  возможно. Cейчaс - участок не разработан. Требуется выравнивание и очистка от ненужных насаждений. Достойное место как для отдыха, так и для постоянного проживания. Рядом карьер Замостье, река Оредеж (буквально 2 минуты на машине). Много достопримечательностей вокруг: Парк Усадьбы Рождествено, Святой Источник, Дом станционного смотрителя. От съезда с КАД на Пулковском шоссе  42-45 минут, дорога отличная. Участок в аренде. После регистрации дома оформляется в собственность. Объект реализуется через процедуру торгов.         Это значит:         - Конечная стоимость покупки объекта  на торгах как правило ниже рыночной стоимости  на 20-30%.         - Процедура торгов регламентируется федеральным законом, что делает сделку безопасной.         Мы всегда работаем только с одним клиентом по одному объекту - чтобы клиент получил возможность приобретения по самой выгодной цене.         Наша компания сопровождает сделку до получения клиентом права собственности.         Не упустите свою выгодную покупку!

Участок

Шушино пос. м.Парнас


18 сот
S участка
ИЖС
Юр.статус
Цена
3 700 000 ₽
Участок на берегу озера `Шушинское` - 18 соток ИЖС(собственность). Красивый участок со своим выходом к озеру в пocёлке Шушино. На учаcтке cтoит домик 6 на 6 (каркас, теплый контур, на окнах установлены стеклопакета, стоит на блоках). Зарегистрирован. 
Электрический столб на границе с участком. В посёлке есть магазин, автолавка, зимой чистят дороги. Экологически чистый воздух, природа, это идеальное место для рыбалки, летом можно порыбачить или просто с удовольствием покататься на лодке, любуясь чудесной природой, а в жаркую погоду искупаться в прохладной озерной воде!! Хвойные лес полный грибов и ягод! 
 Для любителей охоты в лесу располагаются общедоступные охотничьих угодий. Поселок находится рядом с поселком Мельниково - церковь, Кирха, продовольственные магазины, магазин «Петерочка», почта, вся необходимая инфраструктура. Если вы мечтали жить на природе с возможностью рыбалки, охоты в окружении хвойного леса и в дали от городской суеты - это ваш вариант! Звоните! Готовы быстро выйти на сделку!
 Координаты: Приозерский район, поселок Шушино, улица Береговая, участок 12, 47:03:0112004:53

Жилой дом

Бутковичи дер.


45 м2
S дома
18 сот
S участка
1
Этажей
Цена
1 650 000 ₽
К вашему вниманию предлагаю старенький ,но очень прочный домик .Дом расположен в деревне Бутковичи .Площадь участка 18 соток ,площадь дома 45кв.м.В доме имеется электричество и проведена вода .Внутри дома имеется веранда ,летняя кухня, летняя комната ,баня,и гараж.На первом этаже 2 просторные кухни(основная и летняя).Имеется чердак ,на чердаке много места для отложенных вещей и маленькая комнатка.На участке есть плодовые деревья,и  на против участка имеется прекрасный водоем(подойдет для любителей рыбалки).Прекрасные соседи и хороший заезд к дому.Возможен небольшой торг.

Закажите консультацию специалиста

Оставьте заявку
Нажимая на кнопку «Отправить заявку», Вы даете согласие на обработку своих персональных данных.
×
продажа
Что вы хотите продать?
Сколько комнат?
Тип объекта?
В каком регионе?
В каком районе Санкт-Петербурга
В каком районе Ленинградской области?

Оставьте Ваш контакт и наши специалисты свяжутся с Вами в самые кротчайшие сроки.

+7
×
новостройка
Какие районы Санкт-Петербурга Вас интересуют?
С какой целью Вы планируете приобрести квартиру?
Сколько комнат должно быть в Вашей будущей квартире?
Какой вариант отделки Вам необходим?
Когда Вы хотите заехать?
В какой бюджет хотите уложиться?

Оставьте Ваш контакт и получите подборку квартир без риска столкнуться с мошенничеством и недостроем.

+7
×
сдать
Что вы хотите сдать?
Скольки комнатная квартира?
Какой тип коммерческой недвижимости вы хотите сдать?
В каком регионе?
В каком районе Санкт-Петербурга
В каком районе Ленинградской области?

Оставьте Ваш контакт и наши специалисты свяжутся с Вами в самые кротчайшие сроки.

+7
Этот сайт использует файлы cookie для улучшения пользовательского опыта. Cookie - это небольшие текстовые файлы, которые сохраняются на вашем устройстве и помогают нам запоминать ваши предпочтения, анализировать посещаемость сайта и предоставлять более персонализированный контент. Использование файлов cookie позволяет нам сделать сайт удобнее для вас. Политика конфиденциальности
Принять Отказаться