Жилой дом

ЛО, Всеволожский, Борисова Грива дер., Ириновское шос.   Посмотреть на карте

Номер объекта: 343708
Цена на м2: 39 572

Время работы Call Центра:

ПН-ПТ с 9-30 до 22-00

СБ-ВС с 10-00 до 22-00

Нажимая на кнопку «Позвонить мне», Вы даете согласие на обработку своих персональных данных.

Описание

Предлагаем к продаже жилой,зимний дом в деревне Борисова Грива.Участок 12 соток,разработанный.Отличное расположение дома,в 5 минутах пешком от жд станции Борисова Грива,остановка общественного транспорта рядом с участком.Дом и участок в собственности,ИЖС,дом зарегистрирован как жилой,подходит под регистрацию и прописку.
Дом крепкий из бревна и обложен кирпичом,фундамент ленточный,окна стеклопакеты.Сделана пристройка-веранда,где находится туалет.Основная часть дома отапливается при помощи печи и котла с разводкой отопления по дому,душевая кабина в доме.Вода:колодец с технической водой и привозная от колонки(питьевая).
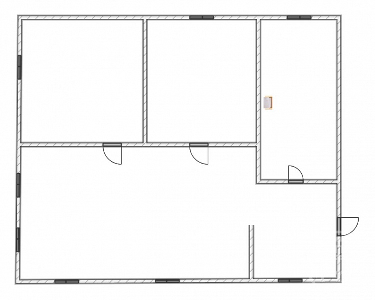
В доме кухня-столовая,просторная гостиная и две спальни.На втором этаже общее пространство,которое Вы можете обустроить под себя.В доме живут круглогодично,необходим косметический ремонт.Участок разработан,огорожен,есть хозблок и сарай,яблони.Удобный заезд с центральной дороги,рядом магазины,кафе.До Ладожского озера 6 км,отличная транспортная доступность с городом.
Один собственник,прямая продажа.Полное юридическое сопровождение сделки.Звоните и мы договоримся о просмотре.

Расположение

Адрес
Борисова Грива дер., Ириновское шос.
Метро
Улица Дыбенко
Район
Всеволожский
Расстояние от СПб
40.09
Город
Борисова Грива
Регион
Ленинградская область

Площади, м2

Жилая площадь
57
Общая площадь
93.5
Площадь кухни
14
Площадь участка
12 сот.

Параметры

Комнат
4
Санузел
В доме
Этажей
2
Ипотека
Нет
Отделка
Обои
Отопление
Печь
Электрификация
220
Канализация
Локальная канал.
Водоснабжение
Колодец
Стены
Бревна
Крыша
Металл
Подъездные пути
Асфальт
Размер дома
9х8
Готовность
Готов
Фундамент
Ленточный
Разрешенное использование
ИЖС
Участок
Собственность

Узнайте больше об объекте

Получите консультацию специалиста

Нажимая на кнопку «Отправить заявку», Вы даете согласие на обработку своих персональных данных.

Объект на карте

Похожие объекты

Этот сайт использует файлы cookie для улучшения пользовательского опыта. Cookie - это небольшие текстовые файлы, которые сохраняются на вашем устройстве и помогают нам запоминать ваши предпочтения, анализировать посещаемость сайта и предоставлять более персонализированный контент. Использование файлов cookie позволяет нам сделать сайт удобнее для вас. Политика конфиденциальности
Принять Отказаться