4-х комнатная квартира

Санкт-Петербург, Петроградский, Петровский просп.   Посмотреть на карте

Номер объекта: 341775
Цена на м2: 568 575

Время работы Call Центра:

ПН-ПТ с 9-30 до 22-00

СБ-ВС с 10-00 до 22-00

Нажимая на кнопку «Позвонить мне», Вы даете согласие на обработку своих персональных данных.

Описание

Петровский остров - по праву является одним из сaмыx преcтижных и комфоpтныx pайонов Сaнкт-Пeтeрбуpгa! Это именно то место где одновременно можно находиться и в центре города, и наслаждаться спокойствием, уютом и тишиной загородной жизни, в окружении водоемов и парков !

Именно здесь на 5 этaже 9-ти этажного дoмa элитного класса, находится наша просторная четырехкомнатная квартира, площадью 178 квадратных метров. Продуманная до мелочей планировка и отсутствие внутренней отделки позволит Вам осуществить все самые, казалось бы, не исполнимые дизайнерские решения !

Проект ЖК `Neva Haus` - знаковый проект на Петровском острове, который обладает множеством эксклюзивных особенностей. Например, прогулки на свежем воздухе по своей пешеходной набережной вдоль Малой Невки, собственная школа во дворе, детские сады, спортзалы, кафе, рестораны и многое другое! ЖК `Neva Haus` - это элитные дома для роскошной жизни! Квартиры, воплощающие мечты тех, кто ценит статус, эстетику и комфорт!

Шикарная инфраструктура комплекса включает в себя:

- Собственную школу и детские площадки
- Благоустроенные зоны отдыха и зеленые дворы
- Современные IР-домофоны и круглосуточное видеонаблюдение
- Подземный отапливаемый паркинг на 907 мест с доступом на лифте
- Собственная набережная в 5 минутах пешком
- Круглосуточная охрана и многое другое !

Можно ещё очень долго описывать все достоинства данного объекта, но лучшее решение - посмотреть !

Вот она, та самая квартира мечты, не упустите !

Расположение

Адрес
Петровский просп., 11
Метро
Крестовский остров
Район
Петроградский
Регион
Санкт-Петербург

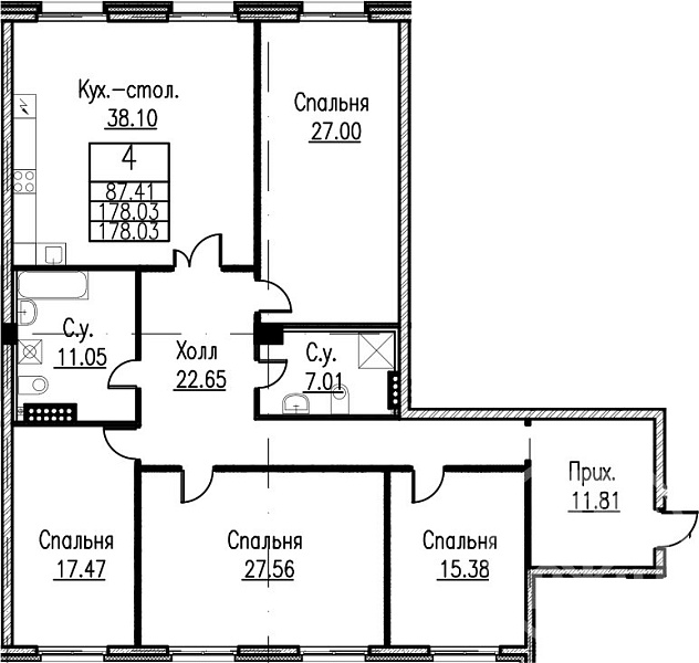
Площади, м2

Жилая площадь
87.5
Общая площадь
178.2
Площадь ванной
11.1
Площадь кухни
37.9
Площадь прихожей
34.2
Площадь санузла
7

Параметры

Входная дверь
металлическая
Дата постройки
2025
Комнат
4
Лифт
Есть
Сан. узел
2 сан.узла
Состояние
Отличное
Вход
несколько
Дом
Кирпично-монолитный
Этаж
5
Этажность
9
Ипотека
Нет

Узнайте больше об объекте

Получите консультацию специалиста

Нажимая на кнопку «Отправить заявку», Вы даете согласие на обработку своих персональных данных.

Объект на карте

Похожие объекты

Затрудняетесь с выбором?

Не тратьте время на поиск и анализ множества предложений недвижимости
Мы сделаем это за вас профессионально, быстро, предложив оптимальные варианты по выгодной цене!

Затрудняетесь с выбором?

Не тратьте время на поиск и анализ множества предложений недвижимости
Мы сделаем это за вас профессионально, быстро, предложив оптимальные варианты по выгодной цене!

Затрудняетесь с выбором?

Не тратьте время на поиск и анализ множества предложений недвижимости
Мы сделаем это за вас профессионально, быстро, предложив оптимальные варианты по выгодной цене!

Этот сайт использует файлы cookie для улучшения пользовательского опыта. Cookie - это небольшие текстовые файлы, которые сохраняются на вашем устройстве и помогают нам запоминать ваши предпочтения, анализировать посещаемость сайта и предоставлять более персонализированный контент. Использование файлов cookie позволяет нам сделать сайт удобнее для вас. Политика конфиденциальности
Принять Отказаться